氟塑料襯里放料閥的生產是一種復雜而又繁重的過程,除了成型加工技術外,還需考慮到生產成本,原料供應,環境影響等方面。模壓是氟塑料襯里成型工藝方法之一(如圖1所示),也是氟塑料襯里放料閥應用最理想的方法之一。

圖1襯里工藝流程圖
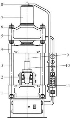
1、下橫梁 2、閥體 3、立柱 4、活動橫梁 5、上橫梁
6、緊固螺母 7、液壓缸 8、油管 9、壓頭 10、壓膜 11、操縱箱
氟塑料襯里放料閥的模壓生產是將一定量的氟塑料(粉狀、粒狀、纖維狀,片狀和碎屑狀等)放入成型的模腔中,然后閉合,放在加熱爐內加熱到一定溫度,并在壓力作用下熔融流動,緩慢充滿整個型腔而取得型腔所賦予的形狀。隨著氟塑料化學反應程度的增加,熔體逐漸失去流動性變成不熔的體型結構而成為固體,經冷卻到一定溫度打開模具,而成為成品,從而完成模壓過程,如圖2所示。

圖2襯里工藝流程圖
與擠出、注射成型工藝相比。模壓具有投資省,經濟效益好的優點。經過改性的氟塑料(如F46等)可以用熱塑性的成型加工方法如模壓、擠出及注射成型獲得,擠出和注射工藝需用專門的注塑機設備,又是高效率、連續性工作,只有單一產品,批量大的場合才適合,而放料閥生產絕太多是品種規格多,批量小的場合,相較之下。沒有模壓工藝生產氟塑料襯里放料閥經濟合理。
地 址:上海市金山區興塔工業區
咨詢電話:021-5736 2601
手機號碼:138 1635 7694
電子郵箱:hanyuev@163.com
網 址:http://www.u9fa.com