角式放料閥產品概述
角式放料閥由閥體、閥蓋、閥瓣、閥桿、閥座、支架、連接在閥桿上部的手動或驅動裝置組成,其閥體進料口與出料口通道的軸線成直角,適用于安裝在垂直相交的管線上的反應釜、儲槽和其他容器的底部放料、排料及取樣。該閥內腔有耐沖刷、耐腐蝕的密封面,在開啟閥的瞬間,可以保護閥腔不會被介質沖刷、腐蝕,并對密封面進行硬化處理,它的閥瓣斜面于閥座角形成線密封,當轉動手輪或接通氣動、電動時,閥桿帶動閥瓣上升或下移,閥門打開,流體通過閥瓣與閥座之間的間隙進入閥內,再由出口流出,反之則關閉。本產品閥體入口與罐底的連接形式可采用法蘭型或管接型,上展式的入口規格與閥門的公稱尺寸一樣大,而下展式的入口規格則比閥門的公稱尺寸大一到二級。
角式放料閥部件材料
序號  | 部件名稱  | 材料名稱  | ||||
1  | 閥 體  | WCB  | CF8  | CF3  | CF8M  | CF3M  | 
2  | 閥 蓋  | WCB  | CF8  | CF3  | CF8M  | CF3M  | 
3  | 閥 座  | WCB  | CF8  | CF3  | CF8M  | CF3M  | 
4  | 閥 桿  | WCB  | CF8  | CF3  | CF8M  | CF3M  | 
5  | 填 料  | GRAPHITE、RPTFE、PTFE、TEFLON、PPL  | ||||
6  | 閥 瓣  | WCB  | CF8  | CF3  | CF8M  | CF3M  | 
7  | 墊 片  | GRAPHITE  | PTFE  | PTFE  | PTFE  | PTFE  | 
8  | 螺 柱  | 35CrMoA  | 304  | 304  | 316  | 316  | 
9  | 螺 母  | 30CrMo  | 304  | 304  | 316  | 316  | 
角式放料閥技術規范
公稱壓力PN(MPa)  | 0.6  | 1.0  | 1.6  | 2.5  | 2.0  | 
殼體強度試驗壓力(MPa)  | 0.9  | 1.5  | 2.4  | 3.75  | 3.0  | 
高壓水密封試驗壓力(MPa)  | 0.66  | 1.1  | 1.76  | 2.75  | 2.2  | 
低壓氣密封試驗壓力(MPa)  | 0.6  | 0.6  | 0.6  | 0.6  | 0.6  | 
設計標準  | JB/T 11489-2013 放料用截止閥  | ||||
連接法蘭  | JB/T 79、GB/T 9113、HG/T 20592、HG/T 20615、SH/T 3406、ASME B16.5  | ||||
檢驗試驗  | JB/T 11489-2013 放料用截止閥  | ||||
適用溫度  | -60℃ ~ 232℃  | ||||
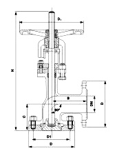
角式放料閥外型尺寸
公稱壓力 PN(MPa)  | 公稱通徑 DN(mm)  | 尺寸(mm)  | |||||
B  | C  | H  | D0  | D  | D1  | ||
1.6  | 50  | 124  | 77  | 370  | 180  | 160  | 125  | 
80  | 158  | 103  | 480  | 250  | 195  | 160  | |
100  | 168  | 123  | 590  | 280  | 215  | 180  | |
150  | 209  | 156  | 775  | 320  | 280  | 240  | |
角式放料閥結構圖

如果你需訂購我廠放料閥產品,咨詢時煩請說明公稱通徑、公稱壓力、閥體材質、操作方式等,本產品操作方式可選用手動、齒輪、氣動(彈簧復位式,雙作用式、帶手輪和不帶手輪)、電動、液動等。
網站首頁