?電動放料閥產品簡介
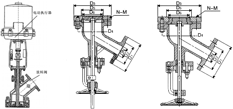
電動放料閥由閥體、閥瓣、閥桿、閥座、支架和直行程電動執行機構等部件組成,其可以電動遙控控制放料閥的開關,實現對罐內物料的自動排放,也可就地通過轉動電裝上的手輪手動驅動,帶行程開關信號燈和就地開度指示。該閥的常見結構形式分為上展式和下展式,它的運動件閥桿通過鎖緊螺母連接閥瓣,閥芯貼合閥座呈密封狀態,保障腔內介質不泄漏,閥桿接受電裝輸出軸上、下位移,使閥芯實施開或關動作,以實現自動排放物料的目的。本產品通常與反應釜配套使用,一般設計閥芯座兼備釜底法蘭的功能。
電動放料閥以220V交流單相可逆異步電動機(含齒輪減速)或其他類型電動機為執行器,智能控制器為其設置智能比例式伺服電路,接收控制系統或調節器的4~20mA DC或1~5V DC信號,經A/D轉換送到CPU進行運算處理,同時CPU與來自電裝的開度信號及上、下限位置進行比較后驅動電機轉動,通過齒輪減速后推動輸出軸作上、下位移,從而驅動閥桿帶動啟閉件上升或下降,以實現輸入信號對閥門開關的控制以及流量調節的作用。本產品電動執行機構分為調節型和開關型,這兩種都可以選擇防爆型或普通型。
電動放料閥部件材料
序號  | 部件名稱  | 材料名稱  | ||||
1  | 閥 體  | WCB  | CF8  | CF3  | CF8M  | CF3M  | 
2  | 支 架  | WCB  | CF8  | CF3  | CF8M  | CF3M  | 
3  | 閥 座  | WCB  | CF8  | CF3  | CF8M  | CF3M  | 
4  | 閥 瓣  | WCB  | CF8  | CF3  | CF8M  | CF3M  | 
5  | 填 料  | GRAPHITE、RPTFE、PTFE、TEFLON、PPL | ||||
6  | 閥 桿  | 2Cr13  | 06Cr19Ni10  | 022Cr19Ni10  | 06Cr17Ni12Mo2  | 022Cr17Ni12Mo2  | 
7  | 墊 片  | GRAPHITE  | PTFE  | PTFE  | PTFE  | PTFE  | 
8  | 螺 柱  | 35CrMoA  | 06Cr19Ni10  | 06Cr19Ni10  | 06Cr17Ni12Mo2  | 06Cr17Ni12Mo2  | 
9  | 螺 母  | 30CrMo  | 06Cr19Ni10  | 06Cr19Ni10  | 06Cr17Ni12Mo2  | 06Cr17Ni12Mo2  | 
電動放料閥技術規范
公稱壓力PN(MPa)  | 0.6  | 1.0  | 1.6  | 2.5  | 2.0  | 
殼體強度試驗壓力(MPa)  | 0.9  | 1.5  | 2.4  | 3.75  | 3.0  | 
高壓水密封試驗壓力(MPa)  | 0.66  | 1.1  | 1.76  | 2.75  | 2.2  | 
低壓氣密封試驗壓力(MPa)  | 0.6  | 0.6  | 0.6  | 0.6  | 0.6  | 
設計制造  | JB/T 11489-2013 放料用截止閥  | ||||
法蘭標準  | JB/T 79、GB/T 9113、HG/T 20592、HG/T 20615、SH/T 3406、ASME B16.5等  | ||||
檢驗試驗  | JB/T 11489-2013 放料用截止閥  | ||||
工作溫度  | -60℃ ~ 232℃  | ||||
電動放料閥外型尺寸
公稱壓力 PN(MPa)  | 公稱通徑 DN(mm)  | 上展式尺寸(mm)  | 下展式尺寸(mm)  | ||||||||||
D1  | D2  | D3  | D4  | D5  | D6  | D1  | D2  | D3  | D4  | D5  | D6  | ||
1.6  | 25  | 115  | 85  | 115  | 85  | —  | —  | 115  | 85  | 135  | 100  | 70  | 40  | 
32  | 135  | 100  | 135  | 100  | 70  | 40  | 135  | 100  | 145  | 110  | 75  | 55  | |
40  | 145  | 110  | 145  | 110  | 70  | 50  | 145  | 110  | 160  | 125  | 80  | 60  | |
50  | 165  | 125  | 160  | 125  | 80  | 60  | 160  | 125  | 180  | 145  | 100  | 80  | |
65  | 180  | 145  | 180  | 145  | 95  | 75  | 180  | 145  | 195  | 160  | 135  | 110  | |
80  | 195  | 160  | 195  | 160  | 110  | 90  | 195  | 160  | 225  | 190  | 160  | 135  | |
100  | 215  | 180  | 215  | 180  | 130  | 110  | 215  | 180  | 260  | 225  | 200  | 175  | |
125  | 245  | 210  | 245  | 210  | 160  | 130  | 245  | 210  | 280  | 245  | 200  | 175  | |
150  | 280  | 240  | 280  | 240  | 190  | 150  | 280  | 240  | 335  | 295  | 240  | 210  | |
200  | 335  | 295  | 335  | 295  | 240  | 200  | 335  | 295  | 405  | 355  | 285  | 240  | |
電動放料閥結構圖

本產品按結構型式的不同分為電動上展式放料閥、電動下展式放料閥和電動放料球閥等。如果你需訂購我廠放料閥,咨詢時煩請說明公稱通徑、公稱壓力、閥體和內件材質、使用介質及溫度、連接形式及電動執行器類型等。
網站首頁