襯氟T型過濾器產品介紹
襯氟T型過濾器采用模壓成型工藝,將氟塑料均勻襯覆在鋼制殼體和殼蓋的內表面,以隔斷金屬基體與腐蝕性介質的直接接觸,從而有效減輕腐蝕破壞,延長設備的使用時間。其襯里層選用耐蝕性較好的氟塑料材質(包括FEP、PTFE或PFA等),而四氟濾芯則由帶有圓孔或方孔(直徑或邊長約為3~5毫米)的濾筒,以及安裝在濾筒內部或外部具有相應目數的編織網組成,這一設計使它特別適用于過濾酸、堿、鹽類等強腐蝕性介質(熔融堿金屬、元素氟及芳香烴除外)。本產品通過對所有接觸物料的部位進行氟塑料襯里處理,較好的解決了金屬殼體容易被腐蝕性介質侵蝕的問題,具備耐蝕性強、化學穩定性好、機械強度高、使用溫度范圍廣、結構簡單、流體阻力小、排污便捷及濾網易于清洗更換等優點,因此,被廣泛應用于石油、石化、化工及相關工業領域。
襯氟T型過濾器部件材料
| 序號 | 部件名稱 | 材料名稱 | |||||
| 1 | 殼 體 | Q235B | 20 | S30408 | S30403 | S31608 | S31603 | 
| 2 | 法 蘭 | Q235B | A105 | S30408 | S30403 | S31608 | S31603 | 
| 3 | 法 蘭 蓋 | Q235B | Q235B | S30408 | S30403 | S31608 | S31603 | 
| 4 | 襯 里 層 | 聚全氟乙丙烯FEP(F46)、聚四氟乙烯PTFE(F4)、可溶性聚四氟乙烯PFA | |||||
| 5 | 濾 芯 | 聚全氟乙丙烯FEP(F46)、聚四氟乙烯PTFE(F4)、可溶性聚四氟乙烯PFA | |||||
| 6 | 螺 栓 | 35CrMoA | 35CrMoA | 304 | 304 | 316 | 316 | 
| 7 | 螺 母 | 30CrMo | 30CrMo | 304 | 304 | 316 | 316 | 
| 8 | 排 放 口 | Q235B | A105 | S30408 | S30403 | S31608 | S31603 | 
襯氟T型過濾器性能規范
| 公稱壓力PN(MPa) | 0.25 | 0.6 | 1.0 | 1.6 | 2.5 | 2.0 | 
| 殼體強度試驗壓力(MPa) | 0.375 | 0.9 | 1.5 | 2.4 | 3.75 | 3.0 | 
| 密封性能試驗壓力(MPa) | 0.275 | 0.66 | 1.1 | 1.76 | 2.75 | 2.2 | 
| 設計制造 | HG/T 3704-2003 氟塑料襯里閥門通用技術條件 | |||||
| 法蘭標準 | JB/T 82、GB/T 9115、HG/T 20592、HG/T 20615、SH/T 3406、ASME B16.5等 | |||||
| 檢驗驗收 | HG/T 3704-2003 氟塑料襯里閥門通用技術條件 | |||||
| 過濾精度 | 10目 ~ 200目 | |||||
| 工作溫度 | -29℃ ~ 180℃ | |||||
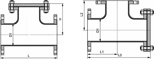
襯氟T型過濾器主要尺寸
| 公稱壓力 PN  | 公稱尺寸 DN  | 結構尺寸/mm | |||||
| D1 | H | L | L0 | L1 | L2 | ||
| 16 | 50 | 57 | 149 | 245 | 265 | 122 | 122 | 
| 65 | 76 | 170 | 292 | 316 | 146 | 146 | |
| 80 | 89 | 181.5 | 312 | 337.5 | 156 | 156 | |
| 100 | 108 | 205 | 362 | 388 | 181 | 181 | |
| 125 | 133 | 240 | 426 | 453 | 213 | 213 | |
| 150 | 159 | 259.5 | 464 | 491.5 | 232 | 232 | |
| 200 | 219 | 311 | 560 | 591 | 280 | 280 | |
| 250 | 273 | 380 | 670 | 668.5 | 318 | 318 | |
| 300 | 325 | 400 | 736 | 768 | 368 | 368 | |
| 表中未列出的其他規格尺寸,請咨詢汗越閥門技術部 | |||||||
襯氟T型過濾器結構圖

如果你需訂購我廠襯氟T型過濾器系列產品,咨詢時煩請說明結構型式、公稱尺寸、壓力等級、殼體材質、襯里層和濾網材料、使用介質及組分、工作溫度、過濾精度、法蘭執行標準等,我廠可按客戶需求承接定制。
網站首頁