HXF2帶雙接管阻火呼吸閥產品概述
HXF2帶雙接管阻火呼吸閥的吸入和呼出口采用所需的接管設計,一般安裝在固定儲罐頂部用于防止真空及超壓對罐體的損壞,它不僅能對石油儲罐內外壓差進行自動調節,而且能減少罐內介質揮發損耗。該閥是利用彈簧限位閥板,由正負壓力決定或呼或吸,它具有泄放正壓和負壓兩方面功能,當罐內承受正壓時,呼氣閥打開呼出氣體,泄放正壓;當油罐承受負壓時,吸氣閥打開吸入氣體,泄放負壓,由此保證壓力在范圍之內,確保罐體安全。本產品集合了呼吸閥與儲罐阻火器的雙重作用,具有體積小、重量輕、結構緊湊、通氣量大、泄漏量小等特點,且密封性能好,特別是高空作業時,檢修、清洗閥內的阻火芯件及正負壓閥盤非常方便。
HXF2帶雙接管阻火呼吸閥部件材料
序號  | 部件名稱  | 材料名稱  | ||||
1  | 閥 體  | WCB  | CF8  | CF3  | CF8M  | CF3M  | 
2  | 閥 蓋  | WCB  | CF8  | CF3  | CF8M  | CF3M  | 
3  | 導 桿  | 304  | 304  | 304L  | 316  | 316L  | 
4  | 閥 座  | 304  | 304  | 304L  | 316  | 316L  | 
5  | 閥 盤  | 304  | 304  | 304L  | 316  | 316L  | 
6  | 阻 火 層  | 304  | 304  | 304L  | 316  | 316L  | 
7  | 密 封 件  | PTFE  | PTFE  | PTFE  | PTFE  | PTFE  | 
8  | 接 管  | 20#  | 304  | 304L  | 316  | 316L  | 
HXF2帶雙接管阻火呼吸閥技術規范
呼吸閥開啟壓力等級代號  | A  | B  | C  | D  | E  | 
呼吸閥開啟壓力ps(Pa)  | +355,-295  | +665,-295  | +980,-295  | +1375,-295  | +1765,-295  | 
設計制造  | SY/T 0511.1-2010 石油儲罐附件 第1部分:呼吸閥  | ||||
法蘭標準  | JB/T 79、GB/T 9113、HG/T 20592、HG/T 20615、SH/T 3406、ASME B16.5等  | ||||
檢驗試驗  | SY/T 0511.1-2010 石油儲罐附件 第1部分:呼吸閥  | ||||
操作溫度  | -30℃ ~ 60℃  | ||||
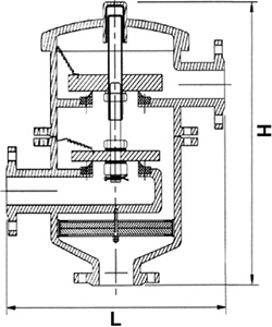
HXF2帶雙接管阻火呼吸閥外型尺寸
公稱壓力 PN(MPa)  | 公稱通徑 DN(mm)  | 尺寸(mm)  | ||||||
L  | H  | D  | D1  | D2  | C-f  | n-d  | ||
1.0  | 50  | 320  | 650  | 165  | 125  | 102  | 18-2  | 4-?18  | 
80  | 450  | 750  | 200  | 160  | 138  | 20-2  | 8-?18  | |
100  | 450  | 950  | 220  | 180  | 158  | 20-2  | 8-?18  | |
150  | 620  | 1100  | 285  | 240  | 212  | 22-2  | 8-?22  | |
200  | 750  | 1200  | 340  | 295  | 268  | 24-2  | 8-?22  | |
250  | 850  | 1500  | 395  | 350  | 320  | 26-2  | 12-?22  | |
300  | 1100  | 1750  | 445  | 400  | 370  | 26-2  | 12-?22  | |
注:以上為HG/T 20592-2009標準PN10整體鋼制管法蘭尺寸。  | ||||||||
HXF2帶雙接管阻火呼吸閥結構圖

如果你需訂購我廠呼吸閥產品,咨詢時煩請提供規格型號,公稱通徑、公稱壓力,閥體和內件材質,環境操作溫度、使用介質、正壓(呼出壓力)、負壓(吸入壓力)、法蘭標準等,如有其他技術要求,咨詢時請詳細說明。
網站首頁