防內漏籃式過濾器產品概述
防內漏籃式過濾器是我公司為解決普通籃式過濾器,由于內部結構簡單,濾籃與筒體連接面密封不嚴,容易出現不同程度的滲漏,從而造成介質純度達不到,直接影響產品的質量而設計制造的。本產品有插管直通式和高低接管式兩種結構,特別適用于煉油、化工、化纖、食品、制藥等更不應出現過濾內漏現象的工藝管道中。
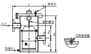
高低接管防內漏籃式過濾器過濾結構因濾筒密封環是水平成型,在環的中間加工一條半圓槽,嵌入氟橡膠O形圈作為密封件,組裝時將濾籃放在濾筒內,濾籃外沿圓環剛好壓在O形圈上面,然后摧動壓籃調節螺絲與上蓋頂緊,可憑借氟橡膠反彈力,就能保證密封的嚴密性,不會出現內漏現象。
插管直通防內漏籃式過濾器進出口成同一水平線,進口管子直接伸入筒體內與濾籃相連接,管子的接口與濾籃的接口先加工成雄雌插口,端面嵌入O形環氟橡膠密封圈,組裝時,將雄端推入雌口,對準密封環,然后將筒體內壁上的活動頂環扣緊,摧緊上蓋調節螺絲,使整體穩固、嚴密杜絕滲漏。當過濾器到一定壓差需要清洗時,先打開上蓋,將活動頂環拉回原位,再將濾筒從雌口中推出、提取即可清洗,處理干凈后重新裝入即可。
防內漏籃式過濾器部件材料
序號  | 部件名稱  | 材料名稱  | ||||
1  | 筒 體  | Q235B  | 20#  | S30408  | S31608  | S31603  | 
2  | 高低接管  | Q235B  | 20#  | S30408  | S31608  | S31603  | 
3  | 法 蘭  | Q235B  | 20#  | S30408  | S31608  | S31603  | 
4  | 筒 體 蓋  | Q235B  | 20#  | S30408  | S31608  | S31603  | 
5  | O 形 圈  | NBR/FPM  | NBR/FPM  | NBR/FPM  | NBR/FPM  | NBR/FPM  | 
6  | 濾 籃  | 304  | 304  | 304  | 316  | 316L  | 
7  | 螺 栓  | 35CrMoA  | 35CrMoA  | 304  | 316  | 316  | 
8  | 螺 母  | 30CrMo  | 30CrMo  | 304  | 316  | 316  | 
9  | 排放螺塞  | 304  | 304  | 304  | 316  | 316L  | 
防內漏籃式過濾器性能規范
公稱壓力PN(MPa)  | 1.6  | 2.5  | 4.0  | 2.0  | 5.0  | 
殼體試驗壓力(MPa)  | 2.4  | 3.75  | 6.0  | 3.0  | 7.5  | 
高壓液密封試驗壓力(MPa)  | 1.76  | 2.75  | 4.4  | 2.2  | 5.5  | 
低壓氣密封試驗壓力(MPa)  | 0.6  | 0.6  | 0.6  | 0.6  | 0.6  | 
設計制造  | SH/T 3411-1999、JB/T 7538-2016、HG/T 21637-1991  | ||||
法蘭標準  | JB/T 82、GB/T 9115、HG/T 20592、HG/T 20615、SH/T 3406、ANSI B16.5等  | ||||
檢驗驗收  | SH/T 3411-1999、JB/T 7538-2016、HG/T 21637-1991  | ||||
過濾精度  | 5目-500目  | ||||
防內漏籃式過濾器外型尺寸
公稱壓力 PN(mm)  | 公稱通徑 DN(mm)  | 尺寸(mm)  | ||||
Φ  | L  | H1  | H2  | H3  | ||
1.0-4.0 (Class150)2.0 (Class300)5.0  | 25  | 76  | 220  | 110  | 70  | 280  | 
32  | 76  | 220  | 110  | 70  | 285  | |
40  | 114  | 280  | 120  | 100  | 340  | |
50  | 114  | 280  | 120  | 100  | 340  | |
65  | 140  | 330  | 160  | 110  | 400  | |
80  | 168  | 340  | 180  | 140  | 460  | |
100  | 219  | 420  | 220  | 170  | 550  | |
150  | 273  | 500  | 310  | 220  | 720  | |
200  | 325  | 560  | 390  | 280  | 900  | |
250  | 426  | 660  | 480  | 320  | 1070  | |
300  | 478  | 750  | 640  | 400  | 1360  | |
防內漏籃式過濾器結構圖

如果你需訂購我廠籃式過濾器產品,咨詢時煩請提供型號數據,公稱通徑、公稱壓力、殼體材質、濾芯材質及過濾精度等,本產品有插管直通防內漏籃式過濾器和高低接管防內漏籃式過濾器兩種,如特殊要求,請詳細說明。
網站首頁