CF41汽水分離器產品簡介
CF41汽水分離器是一種由殼體、排液閥蓋、螺塞及墊片等組成的擋板式汽水分離器。當大量含水的濕蒸汽從進汽口流入殼體內,在撞擊殼內壁螺旋形擋板后流動方向不斷改變,其中所夾帶的水分及其他液滴由于有較大的質量和慣性就會與較輕的蒸汽分離,并沿傾斜殼內壁凝結聚集,然后落入底部排液口排出,而清潔干燥的蒸汽則繞過擋板從出汽口流出,被送往用汽設備或管道。本產品能減少蒸汽中水的含量,提高設備的熱效率,具有結構簡單、使用壽命長和免維護的特點。
CF41汽水分離器主要參考歐洲壓力設備指令97/23/EC的要求設計制造,適用于分離蒸汽,壓縮空氣或氣體系統中的液滴,配上絕熱夾套可提高其工作性能。對蒸汽中含有空氣的情況,應將合適的排空閥裝在排氣口,如果不安裝排空閥,必須拿掉塑料保護套,裝上螺塞。本產品應安裝在水平管道上且排液口垂直向下,為確保被分離的液體迅速排放,應在殼體底部的排放口處連接一套合適的排液閥或疏水閥組合。
CF41汽水分離器部件材料
| 序號 | 部件名稱 | 材料名稱 | ||||
| 1 | 殼 體 | A216 WCB | A351 CF8 | A351 CF3 | A351 CF8M | A351 CF3M | 
| 2 | 檢 查 孔 | A216 WCB | A351 CF8 | A351 CF3 | A351 CF8M | A351 CF3M | 
| 3 | 螺 塞 | ASTM A105 | A182 F304 | A182 F304L | A182 F316 | A182 F316L | 
| 4 | 墊 片 | GRAPHITE | GRAPHITE | GRAPHITE | GRAPHITE | GRAPHITE | 
| 5 | 排 水 孔 | A216 WCB | A351 CF8 | A351 CF3 | A351 CF8M | A351 CF3M | 
| 6 | 排 水 塞 | ASTM A105 | A182 F304 | A182 F304L | A182 F316 | A182 F316L | 
CF41汽水分離器性能規范
| 公稱壓力PN(MPa) | 1.6 | 2.5 | 4.0 | 2.0 | 5.0 | 
| 殼體試驗壓力(MPa) | 2.4 | 3.75 | 6.0 | 3.0 | 7.5 | 
| 高壓液密封試驗壓力(MPa) | 1.76 | 2.75 | 4.4 | 2.2 | 5.5 | 
| 低壓氣密封試驗壓力(MPa) | 0.6 | 0.6 | 0.6 | 0.6 | 0.6 | 
| 設計制造 | 符合歐洲壓力設備指令97/23/EC | ||||
| 法蘭標準 | JB/T 79、GB/T 9113、HG/T 20592~20615、DIN EN 1092、ASME B16.5等 | ||||
| 檢驗驗收 | 符合歐洲壓力設備指令97/23/EC | ||||
| 壓力試驗 | JB/T 9092、GB/T 13927、BS 6755-1、API 598等 | ||||
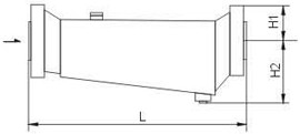
CF41汽水分離器主要尺寸
| 公稱壓力 PN  | 公稱通徑 DN  | 外形尺寸/mm | 檢查孔 A  | 排水孔 B  | ||
| L | H1 | H2 | ||||
| 6 ~ 25 (Class150) 20  | 20 | 320 | 53 | 100 | — | — | 
| 25 | 320 | 58 | 100 | — | — | |
| 32 | 320 | 68 | 100 | — | — | |
| 40 | 405 | 73 | 140 | — | — | |
| 50 | 405 | 80 | 140 | — | — | |
| 65 | 465 | 90 | 180 | — | — | |
| 80 | 510 | 98 | 200 | — | — | |
| 100 | 510 | 108 | 200 | — | — | |
| 125 | 580 | 123 | 210 | — | — | |
| 150 | 580 | 140 | 210 | — | — | |
| 200 | 650 | 170 | 240 | — | — | |
CF41汽水分離器結構圖

如果你需訂購我廠汽水分離器產品,咨詢時煩請說明公稱通徑、公稱壓力、主體材質、介質溫度、法蘭標準及法蘭密封面形式等,如果工況條件允許的話,本產品應在干燥的環境中運行,不但可以提高設備的熱工作效率,還能延長其使用壽命。
網站首頁